€2600/mq
ID-6993
In vendita
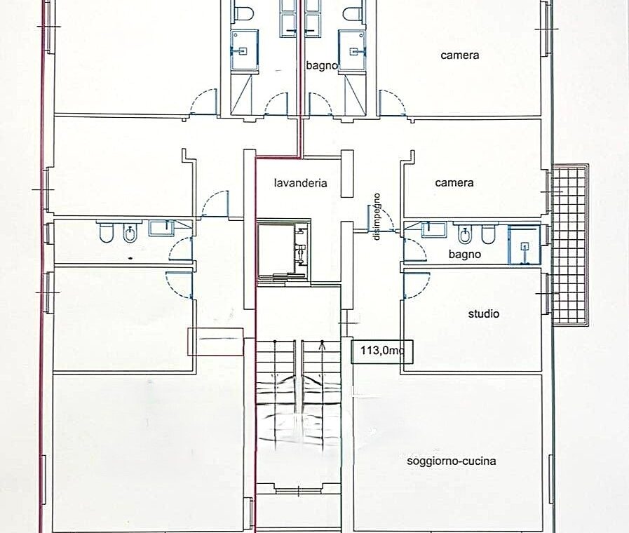
Camere 3
Bagni 2
Metratura 113 m²
Piano primo o secondo
Balconi 2
Classe energetica A
Anno di costruzione nuova costruzione
Questo complesso di nuova costruzione si trova nella zona centrale di Porto Potenza Picena, a due passi dal mare. Gli appartamenti in vendita sono due, uno al primo ed uno al secondo piano con esposizione Nord/Sud/Est, hanno una superficie di 113 mq e sono composti da ingresso, ampio soggiorno e cucina, tre camere da letto, due bagni, lavanderia e due balconi. Possibilità di avere n.1 posto auto coperto ed una cantina di 8 mq. Gli appartamenti sono eleganti e funzionali al tempo stesso, la perfetta fusione tra modernità architettonica, efficienza e sostenibilità ambientale. Il tetto dell’edificio e la pensilina di copertura dei posti auto, sono dotati di pannelli fotovoltaici e sono in grado di trasformare la luce solare in “energia pulita”.
Vi aspettiamo in agenzia per maggiori info e dettagli.
